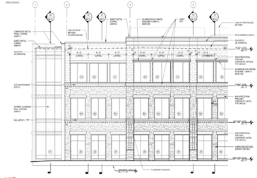
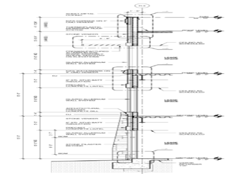
Construction document production. ( SD/DD/CD packages)
BIMXgen is fully equipped with team of Architect to take on the producing full sets of construction drawings from schematic design to completion stage for projects of all sizes in a timely and cost-effective manner. Since we tailor our services to the needs of our clients, our involvement (and deliverables) varies for each project. You set the specs – we get it done. Right. And on time.
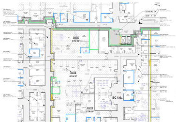
An integral part of the virtual building process, BIMXgen offers NavisWorks 3d coordination management as a standalone service or as part of our BIM execution services. BIMXgen understand the requirement of general contractor and provide them various coordination services.
1. Facilitate integration with NavisWorks coordination and clash services.
2. Design model assessment. We can review BIMs received from your design team and determine and fix building and coordination issues.
3. We provide discrepancy reports related to inadequacies or inaccuracies in the design model as encountered during the review process. BIMXgen understand the requirement of general contractor and provide them various coordination services.
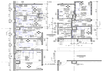
4. BIM for all disciplines and trades. We utilize Revit Architecture, Structural and MEP software.
BIMXgen team capable of using various collaboration tools like BIM360, Citrix, Bluebeam, Zoom meeting, Newforma, etc.








Also out team are expert user of various BIM/ Visualization software like Revit, Naviswork, Assembled, Autocad, Dynamo, 3D max, Enscape, Sketchup, Rhino, etc.
(+1) 217-650-2737
Bimxgen Technologies
1825, Fairhaven Lane, Schaumburg, Illinois, 60194